House Blombos

About this Project


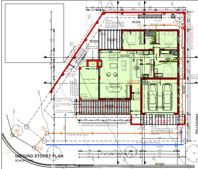
This 3 bedroom 2 bathroom home features a braai/ entertainment area that forms part of the living room with spectacular views of the beach. This property is located in Stilbaai Duine luxury lifestyle estate.

× Full Image